OBRA NUEVA PISO+TRASTERO

OBRA NUEVA PISO+TRASTERO

EN003-1D

Centro- Campoamor -Mercado | 158.000 €


Especificaciones

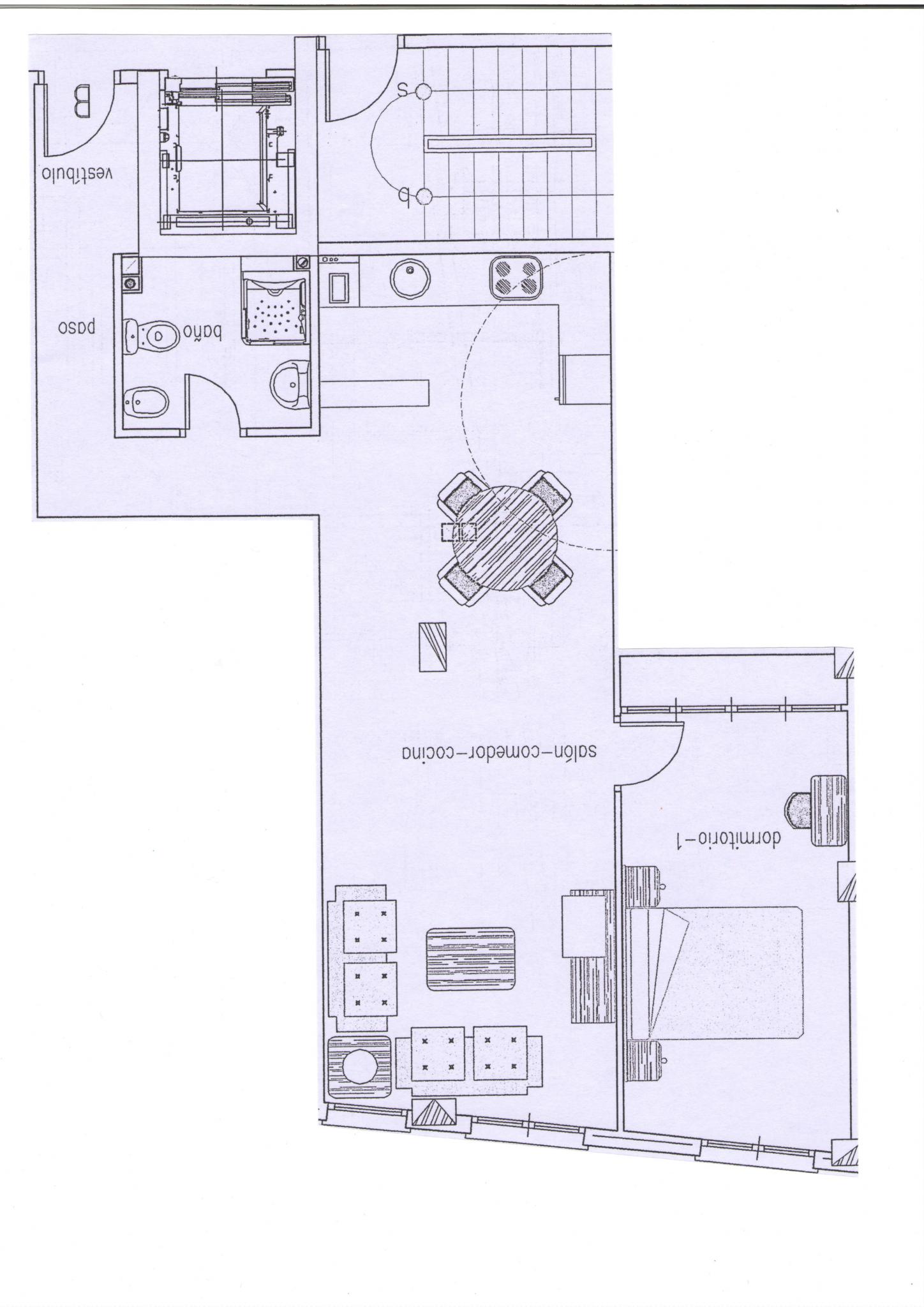
Habitaciones: 1
Baños: 1
Tipo de inmueble: Piso
Superficie: 66,71
Planta: 1

Características del inmueble


Balcón

Galería

Tipo de propiedad: Piso

Orientación: Sur y Oeste

Conservación: A estrenar

Tipo de pared: Gotelé

Puerta: Blindada

Tipo de cocina: Integrada al Salón

Carpintería interior: Haya Vaporizada

Carpintería exterior: Climalit. Doble Acristalamiento

Tipo de suelo: Gres

M2 Útiles: 60

Características de la finca


Ascensor

Trastero

Acceso a minusválido

Año de la finca: 2009

Vecinos por planta: 4

Plantas del edifio: 5

Descripción


CONOCE EL EDIFICIO:

Edificio con viviendas A ESTRENAR,  de fachada compuesta de estucado y recercado de piedra artificial. Carpintería exterior en aluminio y patios en blanco, con persianas de aluminio. Acristalamiento: doble cristal con cámara aislante y buen confort en el interior de la vivienda, con el consiguiente ahorro energético. Puertas interiores en madera de haya vaporizada. Construcción de 2009.

CONOCE LA VIVIENDA:

1-2 y 3 dormitorios, con la opción de adquirirlas con garaje o trastero .Algunas de ellas tienen asignado ya el trastero que les corresponde. Suelos de terrazo pulido y abrillantado de 40x40 cm cacheado serie E.

Instalación de gas natural para agua caliente con caldera de 14 l.  Video-portero electrónico. Teléfono y de antena de TV en salón-comedor, cocina y dormitorios e instalación “home cinema” en salón.

PRECIOS A PARTIR DE 158.000€ CON TRASTERO ASIGNADO EN VARIAS DE LAS PROPIEDADES.

CONOCE LA ZONA:

A  tan solo 1 minuto andando de Alfonso el Sabio, con parada de autobús y TRAM a solo 100 metros de las viviendas. Este edificio te brinda la oportunidad de disfrutar de Alicante, sin la necesidad de  coger el coche en tu día a día.

Contacta con nosotros para más información. EAST ALICANTE.  644 889 242

KNOW THE BUILDING:

Building with BRAND NEW HOUSES, with a facade made of stucco and an artificial stone fence. Exterior carpentry in aluminum and patios in white, with aluminum shutters. Glazing: double glazing with insulating chamber and good comfort inside the house, with the consequent energy saving. Interior doors in vaporized beech wood. Construction of 2009.

KNOW THE HOUSE:

1-2 and 3 bedrooms, with the option of acquiring them with garage or storage. Some of them have already assigned the storage room that corresponds to them. Polished and polished terrazzo floors of 40x40 cm cacheado series E.

Installation of natural gas for hot water with boiler of 14 l. Electronic video-door entry. Telephone and TV antenna in living room, kitchen and bedrooms and installation "home cinema" in the living room.

PRICES FROM  158,000€ WITH STORAGE ALLOCATED IN SEVERAL OF THE PROPERTIES.

KNOW THE AREA:

Only 1 minute walk from Alfonso el Sabio, with bus stop and TRAM only 100 meters from the houses. This building gives you the opportunity to enjoy Alicante, without the need to take the car in your day to day.

Contact us for more information. EAST ALICANTE. 644 889 242

Especificaciones

Habitaciones: 1
Baños: 1
Tipo de inmueble: Piso
Superficie: 66,71
Planta: 1